Život

Renovace rodinného domu ve Staré Huti na ulici Krásný život

Autor: Ateliér Kopecký / Jan Kopecký, Tomáš Kopecký
Spolupráce: Michaela Pánková Kopecká
Zahradní architektura: Symbio studio / Pavla Drbalová
Fotografie: Takuu – Petr Marvan
Místo: Stará Huť, ulice Krásný život
Investor: soukromá osoba
Fáze projektu: studie, dsp, dps, ad
Projekt: 2017–2019
Realizace: 2020–2023

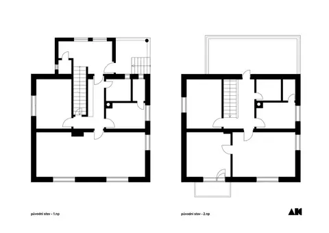
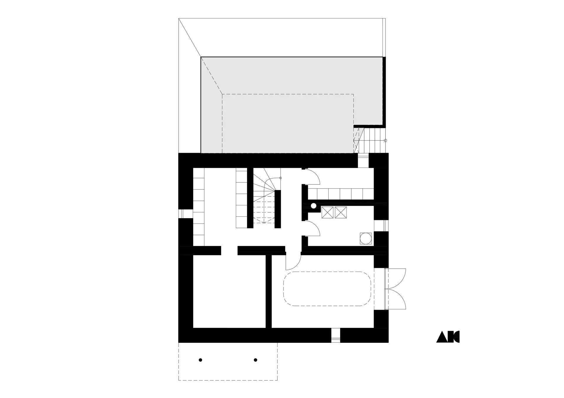
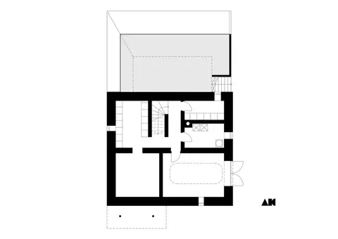
Přestavba rodinného domu v obci Stará Huť u Dobříše. Mladá rodina se rozhodla pro složitější, ale krásnou cestu celkové přestavby domu po prarodičích pro potřeby vlastního bydlení. Ulice Krásný život, kde dům stojí, je slepá radiála z centra obce. Urbanisticky je renovovaný dům součástí roztroušené struktury rodinných domů bez jasné stavební čáry. Na západní straně je patrná blízkost rychlostní komunikace na Prahu. Na východní straně leží bývalá obora, les protknutý pěšinami, za severní hranicí pozemku stojí dům rodičů stavebníka.

Navržené zásahy řeší základní nedostatky domu, které pramení z rozdílů požadavků na bydlení mezi jeho původními a o dvě generace mladšími současnými uživateli. Navržené řešení je založeno především na spojování. Propojit obytný prostor v jeden celek, propojit zahradu a obývák, propojit první a druhé patro. Základní dispoziční uspořádání zůstává zachováno - obytné místnosti orientovány na jih, schodiště a koupelny na sever. Ze hmoty domu jsou odebrány nepotřebné objemy. Přízemí domu je propojeno v jeden plynoucí obytný prostor s  více částmi různých charakterů. Podlaha obývací části prostoru je snížena tak, aby umožnila přímý kontakt se zahradou skrz lodžii, která vizuálně prodlouží obytný prostor a umožní pobyt ve venkovním chráněném prostředí (hluk od dálnice, povětrnost, letní slunce z jihu). Dlouhým oknem z kuchyně mají obyvatelé domu kontakt s veřejným prostorem ulice, vidí kdo přichází na návštěvu. Propojení obytného a ložnicového patra je provedeno vybouráním části stropu nad obývacím prostorem. Vzniká vysoký obývák se speciálně navrženým lustrem, do kterého jsou orientována vnitřní okna z ložnic, čímž vznikají zajímavé průhledy domem a  pokoje tak nejsou úplně odříznuty od zbytku domu. Oknem v západní fasádě ve vrchní části převýšeného prostoru svítí do jídelny odpolední slunce (opravdu to funguje!). Na severní straně domu je před vchodem přistavěna prosklená zimní zahrada, která se dá v létě otevřít a děti z ní budou vybíhat po nově vysvahovaném kopečku přes zahradu k babičce na štrůdl.