Suchomasty

Přestavba a přístavba mateřské školy v CHKO Český kras

Autor: Ateliér Kopecký / Tomáš Kopecký, Mojmír Kopecký
Fotografie: Takuu – Petr Marvan (interiér)
Místo: Suchomasty u Berouna
Investor: obec Suchomasty
Fáze projektu: studie, dsp, dps, ad
Projekt: 2018–2019
Realizace: 2019–2020

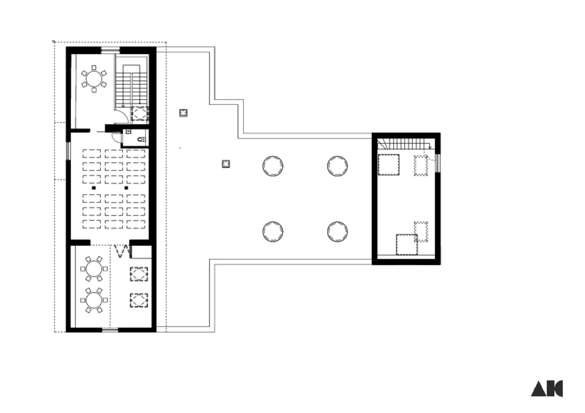
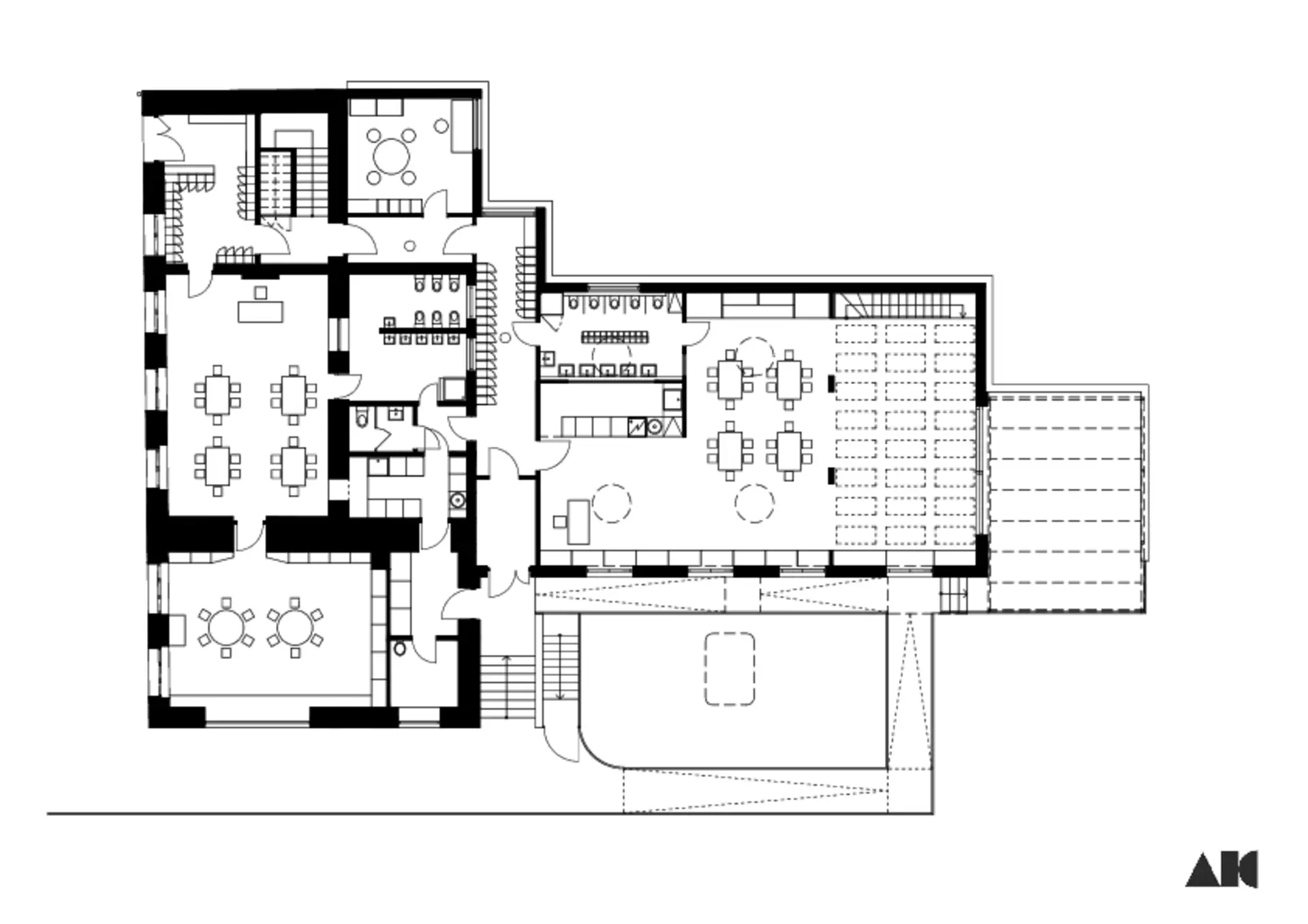
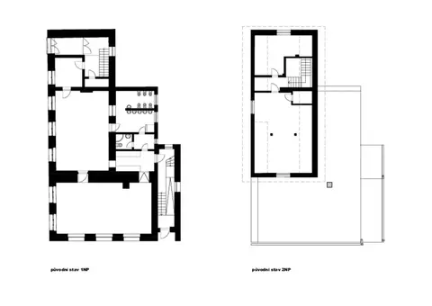
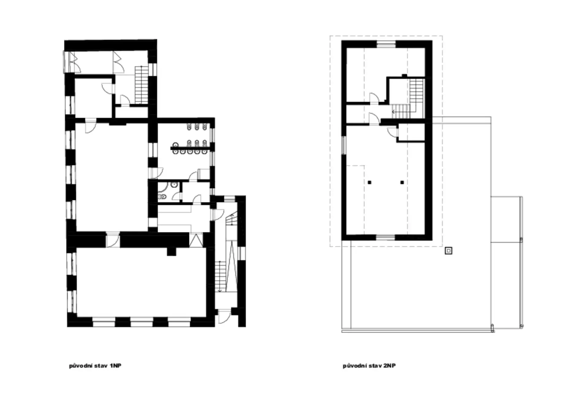
Malá obec Suchomasty se nachází nedaleko Koněpruských jeskyní na Berounsku. Tak jako mnohé další malé obce v širším prstenci okolo Prahy zažila babyboom a přestala jí a  spádovým obcím dostačovat kapacita stávající mateřské školy. Ta se nachází v centru obce v  dolíku pod hrází obecního rybníka. Původně hospodářské stavení prošlo velkým množstvím přestaveb a přístaveb. Ty probíhaly často velmi živelně, což se projevilo na poměrně nesourodé figuře původní budovy.

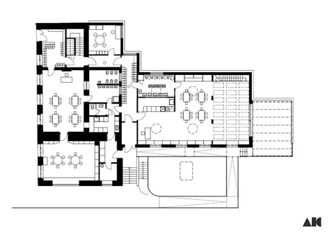
Z demografické studie vyplynula nutnost přistavět alespoň jednu třídu. Nakonec se z  pouhé přístavby třídy stala komplexní úloha včetně stavebních zásahů do původní školky. Z  původní budovy byl odstraněn nános přístaveb, prodloužením sedlové střechy byla budova sjednocena do jednoho objemu a v neposlední řadě byl z fasády odstraněn pastelkový nátěr zateplováků 90. let. Stará budova, více uzavřená, teď slouží nejmladším dětem. Ty mají striktně odděleny jednotlivé funkce a prostory – hernička s velkým sedacím oknem do zahrady, jídelna, spací místnost. Starší děti mají v nové přístavbě jeden volně plynoucí, jednoduše dělitelný prostor s vestavěným patrem v převýšené části, který umožní variabilnější výuku a hru dětí. V nové části je kladen důraz na přirozené osvětlení, přírodní materiály, propojení se zahradou. Přístavba je jednoduchá, vzdušná obdélníková hmota o rozměrech ca 10×15 m, je pohledově skryta za původní budovu MŠ a historickou budovu mlýna. Zelená střecha splývá se zahradou, aby větší hmota přístavby pohledově nenarušila drobné měřítko jádra obce. Velká francouzská okna se sníženým parapetem propojují novou třídu se zahradou, přímý přístup do ní je možný přes zastřešenou hrací terasu, která je v teplých dnech spojená s třídou velkým posuvným oknem. Přístavba je navržena z udržitelných materiálů – dřevěná konstrukce zateplená tepelnou izolací na bázi dřeva, opláštěná modřínovým laťováním, uvnitř přírodní marmoleum a nábytek z biodesek z  tuzemského dřeva. Pohledové části jsou sladěny do světlých přírodních odstínů – světlá omítka (prodloužená hmota stávající budovy) a přírodní, dřevěný laťkový obklad. Barevnost do prostoru přinášejí hrající si děti a jejich výrobky. Velký důraz byl kladen na udržitelnost a energetickou nenáročnost budovy – celá přístavba je pokryta zelenou střechou, dešťová voda je zachytávána do akumulační nádrže a slouží k zálivce zahrady.