Desátková

Renovace rodinného domu v Brně

Autor: Ateliér Kopecký / Jan Kopecký
Spolupráce: Michaela Pánková Kopecká
Fotografie: David Korsa (exteriéry) a Takuu – Petr Marvan (interiér)
Místo: Brno
Investor: soukromá osoba
Fáze projektu: studie, dsp, dps, ad
Projekt: 2018–2019
Realizace: 2019–2024

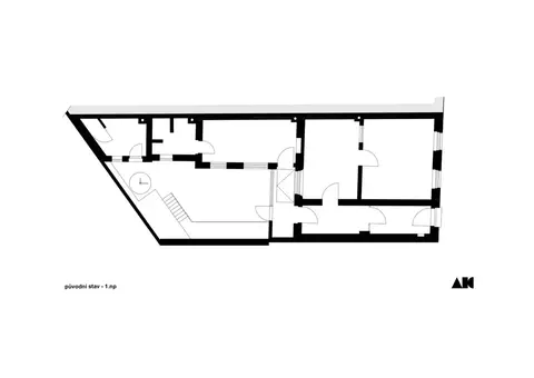
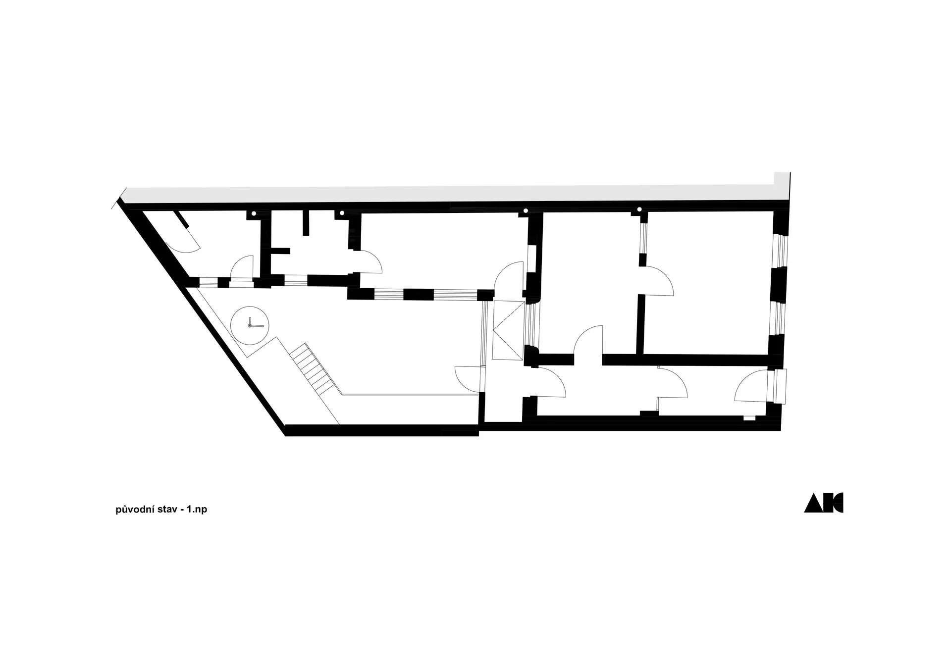
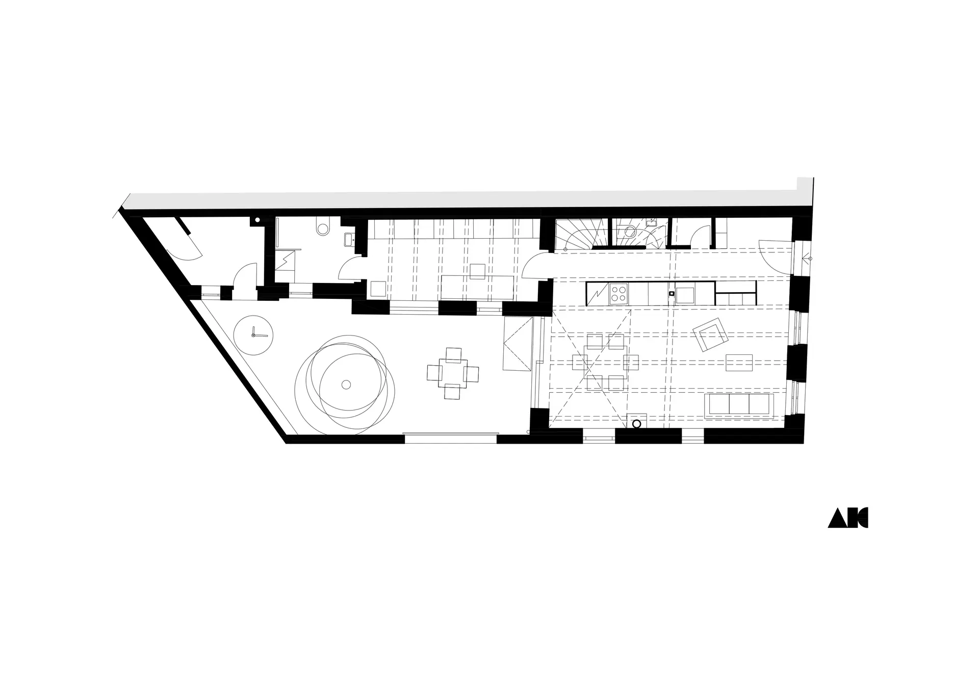
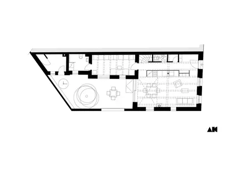
Renovace domku v Brně uvnitř jedné ze zatáček staré trasy Masarykova okruhu. Dům byl původně řadový, vedle stál ještě jeden, který při rozšíření silnice padl, na jeho místě je nyní parkoviště. Stavební program jsme na sebe naskládali tak, aby ulice získala chybějící nároží. V přízemí je obývací prostor, který je díky přesunutí vchodu k sousedovu plnému štítu, prosvětlený ze tří stran a otevřený prosklenou stěnou do dvorku. Za velkým oknem nárožního vikýře je převýšená ložnice rodičů (okamžitě po nastěhování zabraná dětmi) s mezipatrem, ze kterého je krásný výhled nad střechami sousedních domů do údolí. Materiálově jednoduché – leštěný beton, světle mořené dřevo, bílá omítka uvnitř, původní recyklovaná střešní krytina.Při bouracích pracích se pod dřevěnou podlahou našel starý korálkový náramek, jehož barvu jsme použili na vstupní dveře, aby se zachovala kontinuita místa.