Chodov

Přestavba bývalé výrobny knedlíků na městskou knihovnu

Autor: Ateliér Kopecký / Tomáš Kopecký, Jan Kopecký, Mojmír Kopecký
Fotografie: Takuu – Petr Marvan (interiér)
Místo: Chodov, ulice Dvořákova
Investor: město Chodov
Fáze projektu: studie, dsp, dps, ad
Projekt: 2019–2020
Realizace: 2021–2023

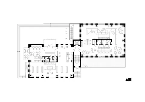
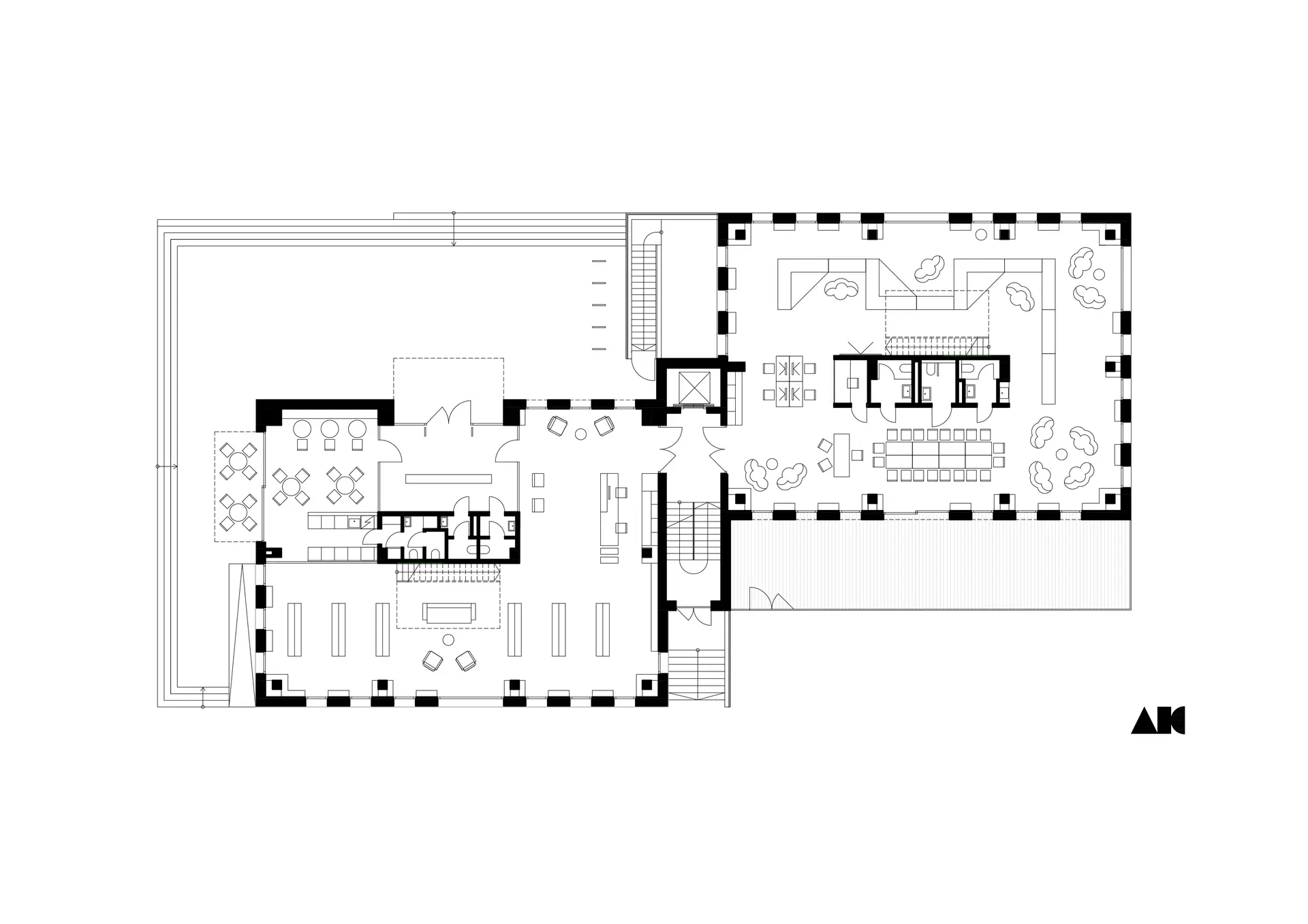
Přestavba vyhořelého objektu sídlištní infrastruktury na městskou knihovnu. Na začátku byla otázka co s vyhořelým squatem nedaleko centra města. Místo bourání se vedení města rozhodlo pro složitější cestu přestavby. Typizovaný objekt sídlištní vybavenosti byl původně postaven pro potřeby přilehlé polikliniky. V průběhu let se několikrát změnila jeho náplň, posledním provozem byla výrobna knedlíků.

Na začátku návrhu jsme stanovili základní teze:

  • knihovna komunitním centrem města – musí být proto maximálně otevřená návštěvníkům jak vizuálně, tak fyzicky
  • knihovna vzdušná a prosvětlená – nutné zázemí je situováno doprostřed dispozice, což umožňuje přirozené provětrání a prosvětlení objektu
  • knihovna variabilní – mobilním nábytkem lze v rámci volného výběru vytvořit prostory pro různý počet návštěvníků – od společného pletení svetrů po autorské čtení
  • knihovna otevřená – součástí návrhu jsou i různé typy navrženého veřejného prostoru, kam budova přirozeně expanduje

Struktura původního objektu předjímá funkční rozdělení objektu po jednotlivých objemech – severní část objektu je věnována dospělému oddělení, doplněnému o kavárnu a vstupní část, jižní část objektu je věnována dětskému oddělení, které je v patře doplněno o minimalizované administrativní zázemí knihovny s komunitní kuchyňkou. V suterénu je situován multifunkční sál s nezbytným zázemím a technická místnost. Sociální zázemí objektu jsou umístěna uprostřed dispozice tak, aby se maximálně využil prostor přirozeně osluněný denním světlem, komunikační jádro je umístěno na střihu obou objektů. V rámci projektu bezprostředního okolí jsou navrženy 3 typy veřejného prostoru: 1) vstupní – velkorysá vstupní platforma, kde je možné pořádat výstavy; 2) klidný – zastíněná klidná terasa, navazující na dětské oddělení a 3) slavnostní – pochozí terasa na střeše porostlé extenzivní zelení. Fasády abstrahované do pilířů a stropních desek naznačují významnou městskou funkci budovy – knihovny. Velkorysé otvory ve fasádě umožňují přímý kontakt mezi exteriérem a interiérem budovy. Probourání stropu a světlík uprostřed každé z budov umožňují prosvětlení dispozice a navozují pocit velkorysého prostoru v mezích nízké světlé výšky původní konstrukce.